Amusement Logic vuelve a sumar fuerzas con Lulu Group International, para dar vida en esta ocasión a un nuevo centro de entretenimiento familiar bajo la marca Funtura. Esta colaboración, ya la séptima entre ambas compañías, consolida una alianza estratégica que reafirma la confianza del gigante comercial en la experiencia y creatividad del equipo español, sin duda, referente internacional en el diseño de espacios de entretenimiento y ocio.
El proyecto, actualmente en desarrollo, despliega un concepto integral en el que se entrelazan la innovación y la diversión para crear experiencias memorables. Según los planos preliminares, el diseño de los espacios refleja un planteamiento multigeneracional, de manera que garantiza atracciones del interés, tanto de niños y de jóvenes, como de adultos.
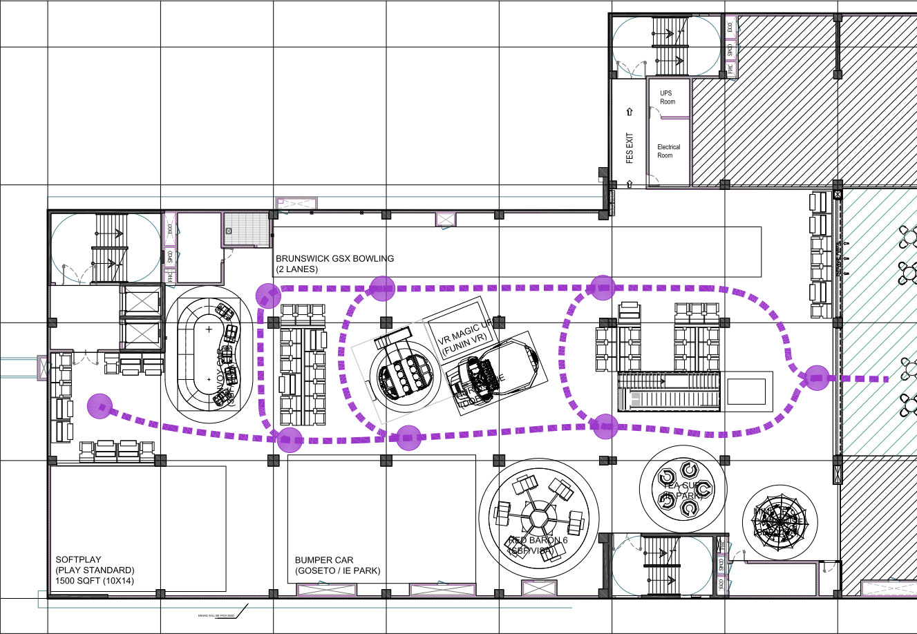
Entre los elementos más destacados del diseño se encuentran:
-Una pista de bolos: el centro contará con dos líneas en una pista de bolos de última generación, concebida como un espacio social y de ocio activo para grupos y familias.
–Juegos estándar, con una amplia oferta de simuladores, arcades y juegos de habilidad, ajustados para el equilibrio entre desafío y diversión accesible.
-Pista de autos de choque: un clásico reinventado que promete risas y adrenalina en un entorno seguro y vibrante.
-Zona de juegos de realidad virtual.
-Para los más pequeños: una zona «blanda» para que jueguen sin peligro, un carrusel y otros juegos giratorios y una atracción de coches en convoy.
Más allá del catálogo de atracciones, Amusement Logic pone el acento en un diseño arquitectónico y espacial que fluye de manera intuitiva, favorece la circulación, la seguridad y el disfrute de momentos compartidos. La distribución segrega y segmenta las experiencias por intensidad o tipo, y optimiza así la experiencia del visitante desde su llegada.
Fuentes de la compañía aseguran que «este nuevo proyecto con Lulu Group International es un testimonio de nuestra visión compartida: crear destinos de ocio que sean mucho más que un conjunto de atracciones, espacios donde se afirman los vínculos familiares, se celebran momentos y se vive la emoción en un entorno diseñado al detalle».
Esta séptima colaboración entre Amusement Logic y Lulu Group International marca un hito en la relación bilateral, pero también refuerza la expansión en el panorama internacional de la marca Funtura como sinónimo de entretenimiento familiar de calidad. El éxito reiterado de estos proyectos subraya la capacidad de comprender las demandas del mercado global y materializarlas en diseños viables, atractivos y comercialmente exitosos.






